Cart 0
 
pattern_logo_alt_WHITE.png
 

 LANTERN ON THE LAKE

Pattern of Life case study

2021-01-04_Sweeney Lake Rendering - photoshopped_02 copy.jpg

PHASE 1: INSPIRATION

The homeowner’s love of graphic design informed the configuration of individual volumes as a collection of building blocks. The concept became a multi-dimensional puzzle of complementary materials: soft walnut, hard glass, warm stucco, and a handsome color palette rooted in a deep, rugged blue. 

blocks_01.jpg
blues_01.jpg

 PHASE 2: DESIGN

The design of this modern, right-sized residence grew from the idea that home can be a place for reinvention. The client, soon to be an empty nester, is a business owner, is very physically active, and loves to entertain. These three aspects were carefully programmed into each of the house’s 3 levels.

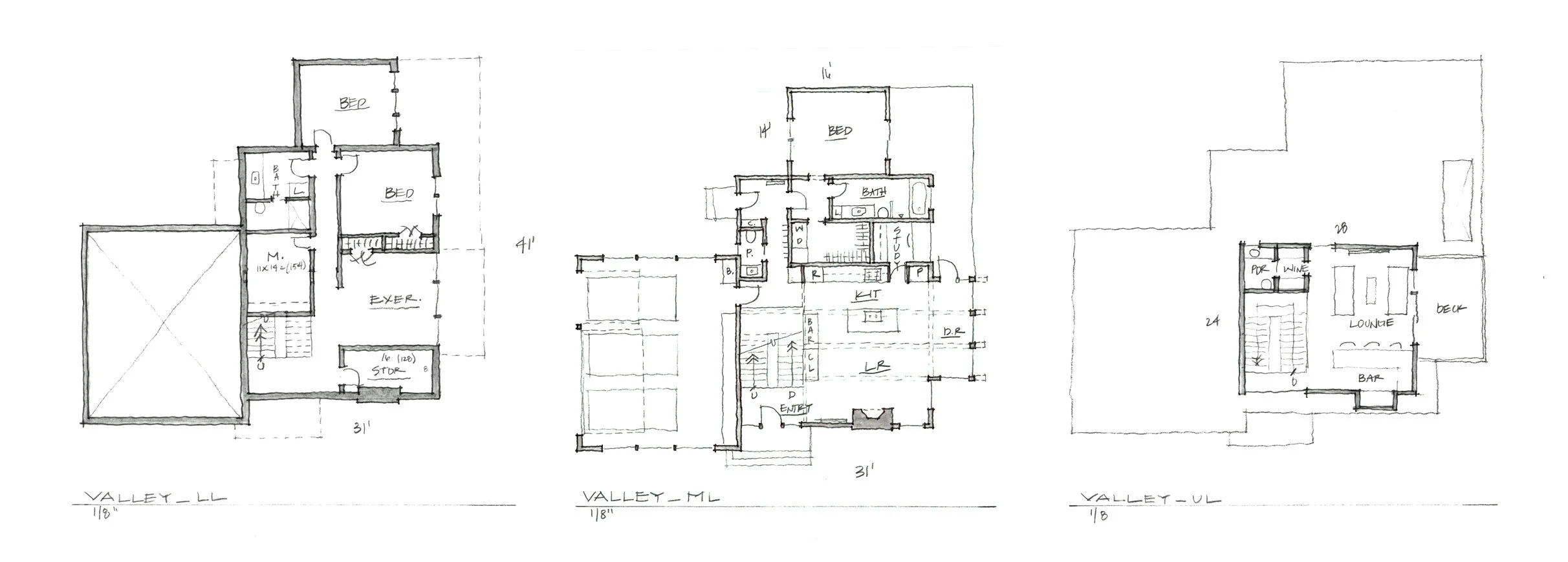
LoL_SKETCHES_COMP.jpg
JG_INSTA_01.jpg

 PHASE 3: LIFESTYLE

The pattern here is wake, exercise, work, and relax & entertain. It’s all about movement and spaces that work together to intuitively support how the owner moves through his day and how his renivented life continues to reveal itself. 

5104 Thotland Rd_001.jpg
bed_morning.jpg
paddleboard.jpg

wine.jpg