Cart 0

 CHERRY MASH MODERN

 
 

Pattern of Life Case Study

CMM_LINE_BLUEmask_01.jpg

  PHASE 1 INSPIRATION

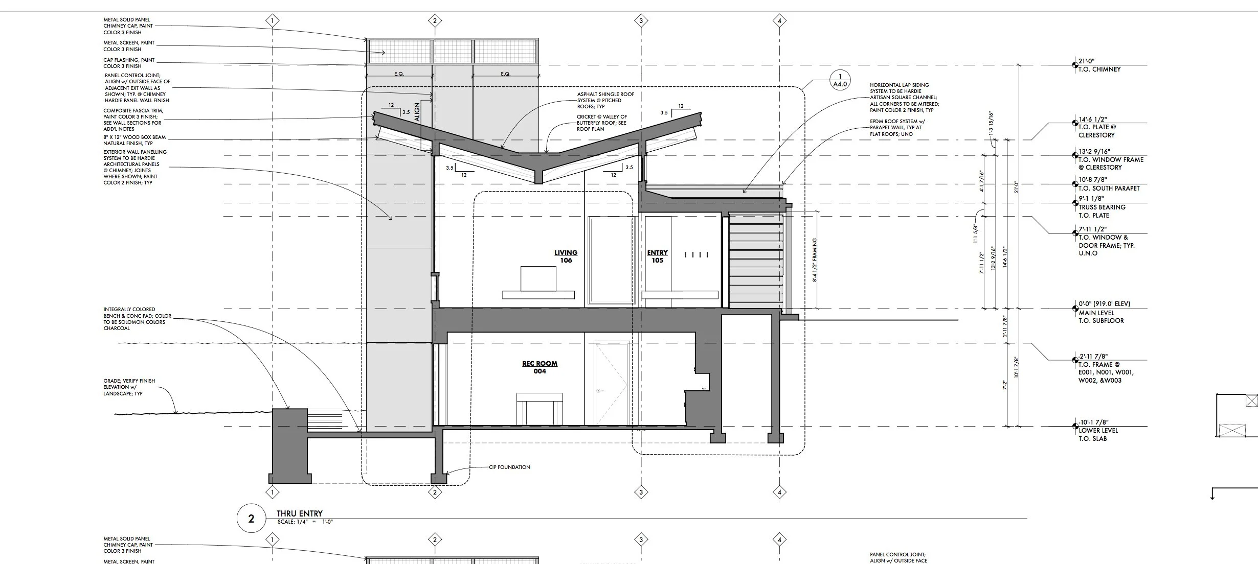
Early conversations were about Scandinavian minimalism, mid-century design aesthetics and the essential awareness of how light enters the home’s spaces and affects the clients’ daily routines. An early structural component that resonated with the owners was a “butterfly“ roofline that enhances the interplay of light and shadow.

 

SHADOWS_03.jpg

 

RANCH_VINTAGE_01.jpg

 

MODERNCHAIRS_01.jpg

 

BUTTERFLY_VINTAGE_02.jpg

  PHASE 2 DESIGN

The home is a modern rambler with a great room, screen porch, and sweeping lakefront windows. The house’s various volumes work to bring the exterior inside, while compressed spaces and sightlines into other spaces allow movement and expansiveness.

 

BUTTERFLY_PLANS_01.jpg

 

CMM_FIREPLACE_02.jpg

 

KITCHEN_02.jpg

 

REPKO_SITE_SARA_02.jpg

 PHASE 3 LIFESTYLE

This house is intended to be the homeowners’ forever home where they will comfortably age in place. The flow inherent in the design, between rooms, between floors and between inside and outside spaces, supports their frequent entertaining, often involving a signature cocktail, the Cherry Mash.

 

PARTIE_PORCH_01.jpg

 

CHERRIES_01.jpg

 

PADDLEBOARD.jpg

 

CHERRIES_02.jpg
PROJECT GALLERY

  328 BARRY AVE SOUTH, SUITE 110 / WAYZATA, MN 55391 / 952.426.8663 / HELLO@CHISELARCH.COM